
業主情況:業主是一對酷愛日漫的小夫妻,平時也喜歡刷日劇,他們希望新房裝修成日系家居環境,柔白色與原木色作為主調,給人自然輕松、溫馨美好的感覺。
	
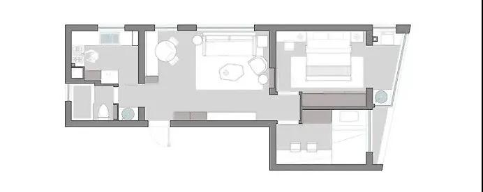
	01
平面圖
	
	
02
客廳
	
	
	
原木是日式風格的重要元素,柔白色與原木色在空間中交互融合,在給人一種置身自然的舒適感,魚骨拼的木質地板烘托出空間的質感又保留了溫馨的質感。
	
	
L型掛墻電視柜與白色乳膠漆墻面搭配簡單而不失格調,藍灰色沙發背景墻是空間色彩的點綴,搭配素凈的白色百葉窗簾,不需要過多的前面裝飾,便能給人輕盈而靈動的質感。
	
簡單的木板與內嵌的空間組成一個高顏值的置物架,擺放上常看的書籍或是裝飾小物,木板底部安裝了燈帶,散發出暖黃色的光線,增加視覺的藝術感和立體感。
	


客廳的一角擺放上一枝綠植給自然的空間添加了一份綠色清新感,旁邊放上一幅橘色調的畫,以暖色增添空間的溫馨感。
	
簡約的雙層圓形茶幾,上層以帶有紋理的半透明玻璃作為臺面,下層以藤編作為置物層,給人復古自然的的視覺感。
03
餐廳
	
	
餐廳空間自然愜意,餐廳區淺灰色的地磚與客廳區魚骨拼木質地板無縫拼接,以不同的地板將兩個不同的區域在視覺上進行劃分。
電視柜與餐廳吊頂、卡座采用同一款成品木飾板鋪貼而成,是整體空間達到色系統一與和諧。
	

餐廳卡座做成開門式收納柜,鋪上軟墊與抱枕,提高坐感的舒適度,搭配簡單的原木色系木質餐桌,打造溫馨質樸的就餐環境。
04
主臥
	
	

	
粉橘色的墻面配以金屬壁燈,高腳書桌搭配復古吊燈讓整個空間變得輕盈且溫柔,臟粉色窗簾與原木色相撞,多了幾分溫馨又讓人心動的復古感。
05
次臥
	
	
藍灰色墻面與客廳沙發背景墻色系相同,與原木色相襯干凈利落,作為書房和客臥,放上一張單人床,放置一個懸掛式書桌,整個空間寬敞明亮。
06
衛生間
	
	
衛生間做了干濕分離,淋浴區用擋水條與一塊長虹玻璃作為隔斷,整個空間白色為主配以黑色的線條框線,不會過時的搭配,簡單而充滿高級感。
和風日式的裝修風格,原木色的家具物品,讓人無意關注物品的存在卻能感受到整體的溫馨且充滿質感的品質生活。
	